



Ο λέβητας πετρελαίου συμπύκνωσης Domusa JAKA HFD 30 CONDENS OD έχει σχεδιαστεί για να προσφέρει υψηλή απόδοση σε εξωτερικές συνθήκες, βελτιστοποιώντας τον εσωτερικό χώρο και εξασφαλίζοντας αποδοτική και φιλική προς το περιβάλλον λειτουργία. Με ωφέλιμη ισχύ 28,7 kW στους 80°C/60°C, αυτός ο λέβητας ξεχωρίζει για την προηγμένη τεχνολογία συμπύκνωσης, τα ανθεκτικά υλικά και τον ανθεκτικό σχεδιασμό στις κλιματολογικές επιρροές. Είναι η ιδανική λύση για όσους αναζητούν θερμική άνεση, ενεργειακή εξοικονόμηση και αξιόπιστη εξωτερική εγκατάσταση.
Το μοντέλο JAKA HFD 30 CONDENS OD ενσωματώνει τεχνολογία συμπύκνωσης που ανακτά τη θερμότητα των καυσαερίων, επιτυγχάνοντας αποδόσεις άνω του 103% σε σχέση με την κατώτερη θερμική αξία (PCI). Αυτό μεταφράζεται σε εξοικονόμηση έως και 30% σε σύγκριση με συμβατικούς λέβητες, επιτρέποντας σημαντική μείωση στην κατανάλωση καυσίμου και στα λειτουργικά κόστη.
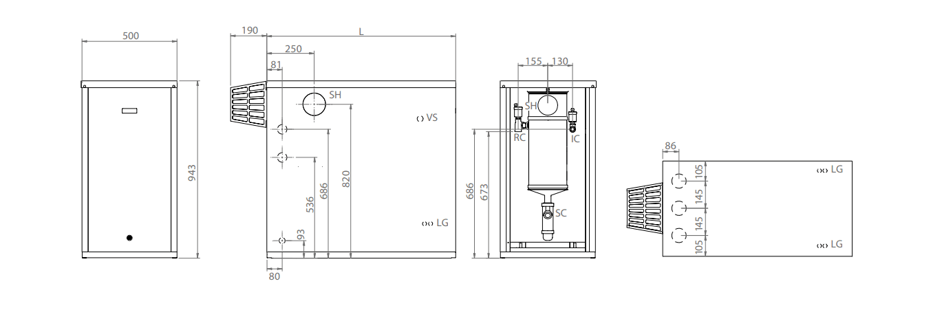
Σχεδιασμένος ειδικά για εγκατάσταση σε εξωτερικούς χώρους, αυτός ο λέβητας διαθέτει στεγανές περιβλήτες με επικάλυψη EPOXY, που τον προστατεύουν από την υγρασία, τη βροχή και τις θερμοκρασιακές μεταβολές. Η στεγανότητά του εξασφαλίζει αποδοτική και ασφαλή λειτουργία, ακόμη και σε δυσμενείς καιρικές συνθήκες, ενώ ο συμπαγής σχεδιασμός του επιτρέπει τη βελτιστοποίηση του διαθέσιμου εσωτερικού χώρου.
Το σώμα του λέβητα είναι κατασκευασμένο από χυτοσίδηρο, ένα υλικό ανθεκτικό στη φθορά που εξασφαλίζει μεγάλη διάρκεια ζωής. Επιπλέον, ενσωματώνει συμπυκνωτή από ανοξείδωτο ατσάλι που μεγιστοποιεί τη θερμική μεταφορά και εξασφαλίζει βέλτιστη λειτουργία για χρόνια. Αυτά τα υλικά υψηλής ποιότητας μειώνουν τη συντήρηση και παρατείνουν την ανθεκτικότητα του εξοπλισμού.
Η προηγμένη ηχομόνωση και η χρήση σφραγισμένου καυστήρα καθιστούν αυτόν τον λέβητα εξαιρετικά αθόρυβο, προσφέροντας άνεση τόσο σε οικιστικά περιβάλλοντα όσο και σε εξωτερικούς χώρους.
Ο Domusa JAKA HFD 30 CONDENS OD έχει σχεδιαστεί για να διευκολύνει την εγκατάσταση σε οποιοδήποτε είδος εγκατάστασης. Η εκκένωση των καυσαερίων γίνεται μέσω σωλήνων πολυπροπυλενίου, γεγονός που απλοποιεί την εγκατάσταση και μειώνει τα σχετιζόμενα κόστη. Επιπλέον, ο εμπρόσθιος πίνακας ελέγχου περιλαμβάνει θερμοστάτη αντιπαγωτικής προστασίας, θερμοστάτη ρύθμισης, φωτεινό διακόπτη on/off και άλλες λειτουργίες που καθιστούν τη χρήση πιο διαισθητική και αποδοτική.
Ο λέβητας Domusa JAKA HFD 30 CONDENS OD είναι ιδανικός για μονοκατοικίες και επαγγελματικούς χώρους που χρειάζονται μια αποδοτική θερμική λύση προσαρμοσμένη για εξωτερικούς χώρους. Η υψηλή του ισχύς, η χαμηλή συντήρηση και ο ανθεκτικός σχεδιασμός τον καθιστούν μια αξιόπιστη επιλογή για απαιτητικά κλίματα.
Με τον Domusa JAKA HFD 30 CONDENS OD, ο χρήστης αποκτά έναν αποδοτικό, ανθεκτικό και βιώσιμο εξοπλισμό, σχεδιασμένο να εξασφαλίζει τη μέγιστη θερμική άνεση με ελάχιστο περιβαλλοντικό αντίκτυπο.