



Ο λέβητας πετρελαίου συμπύκνωσης Domusa JAKA HFD 20 CONDENS OD έχει σχεδιαστεί ειδικά για εγκατάσταση σε εξωτερικούς χώρους, προσφέροντας μια πρακτική και αποδοτική λύση για κατοικίες όπου ο εσωτερικός χώρος είναι περιορισμένος. Με ωφέλιμη ισχύ 19,1 kW στους 80°C/60°C, αυτό το μοντέλο συνδυάζει προηγμένη τεχνολογία συμπύκνωσης, υλικά υψηλής ποιότητας και σχεδιασμό που αντέχει στις καιρικές συνθήκες. Η ανώτερη απόδοσή του και η ενεργειακή πιστοποίηση κατηγορίας Α το καθιστούν μια εξαιρετική επιλογή για όσους αναζητούν αποδοτικότητα, οικονομία και βιωσιμότητα.
Ο λέβητας αξιοποιεί το φαινόμενο της συμπύκνωσης για ανάκτηση της θερμότητας των καυσαερίων, επιτυγχάνοντας αποδόσεις άνω του 103% επί της κατώτερης θερμογόνου δύναμης (P.C.I.). Αυτή η διαδικασία μειώνει σημαντικά την κατανάλωση καυσίμου, επιτυγχάνοντας οικονομίες έως και 30% σε σύγκριση με παραδοσιακούς λέβητες. Η υψηλή του αποδοτικότητα είναι πιστοποιημένη από την ευρωπαϊκή οδηγία ErP, διασφαλίζοντας χαμηλό περιβαλλοντικό αντίκτυπο και χαμηλότερα λειτουργικά κόστη.
Ο σχεδιασμός του Domusa JAKA HFD 20 CONDENS OD είναι βελτιστοποιημένος για να αντέχει σε αντίξοες καιρικές συνθήκες. Τα στεγανά περιβλήματα είναι καλυμμένα με επικάλυψη EPOXY, προσφέροντας μακροχρόνια προστασία από την υγρασία, τη βροχή και τις διακυμάνσεις της θερμοκρασίας. Επιπλέον, η στεγανότητά του εξασφαλίζει ασφαλή και αποδοτική λειτουργία σε οποιοδήποτε περιβάλλον.
Το σώμα του λέβητα είναι κατασκευασμένο από χυτοσίδηρο, ένα υλικό που εγγυάται μακρά διάρκεια ζωής ακόμη και σε απαιτητικές συνθήκες. Ο ανοξείδωτος συμπυκνωτής εξασφαλίζει υψηλή θερμική απόδοση, ενώ ο αρθρωτός σχεδιασμός διευκολύνει τη συντήρηση και παρατείνει τη διάρκεια ζωής του εξοπλισμού.
Χάρη στον στεγανό καυστήρα και την υψηλής ποιότητας ηχομόνωση, ο λέβητας προσφέρει εξαιρετικά αθόρυβη λειτουργία, παρέχοντας άνεση τόσο στο εσωτερικό όσο και στο εξωτερικό της κατοικίας.
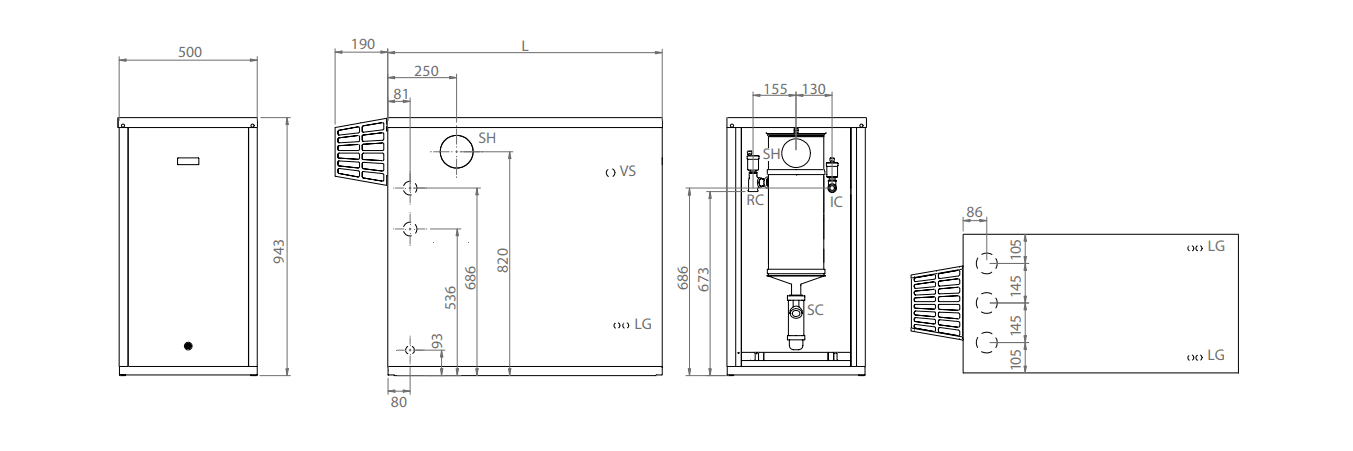
Το μοντέλο JAKA HFD 20 CONDENS OD είναι σχεδιασμένο για απλή και ευέλικτη εγκατάσταση. Μπορεί να προσαρμοστεί σε διάφορες διαμορφώσεις συστημάτων θέρμανσης και επιτρέπει την εκκένωση καυσαερίων μέσω σωλήνων πολυπροπυλενίου, γεγονός που απλοποιεί τη συναρμολόγηση και μειώνει τα σχετιζόμενα κόστη. Επιπλέον, περιλαμβάνει έναν πλήρη και εύχρηστο πίνακα ελέγχου, με λειτουργίες όπως θερμοστάτη αντιπαγετού, θερμοϋδρόμετρο και φωτεινό διακόπτη ανά/σβέσης.
Ο λέβητας Domusa JAKA HFD 20 CONDENS OD είναι μια ιδανική λύση για μονοκατοικίες και χώρους που χρειάζονται να βελτιστοποιήσουν τον εσωτερικό χώρο εγκαθιστώντας το σύστημα θέρμανσης σε εξωτερικούς χώρους. Ο ανθεκτικός του σχεδιασμός, η ενεργειακή αποδοτικότητα και η χαμηλή συντήρηση τον καθιστούν αξιόπιστη επιλογή για απαιτητικά κλίματα και χρήστες που προτιμούν την οικονομία και τη βιωσιμότητα.
Με τον Domusa JAKA HFD 20 CONDENS OD, ο χρήστης απολαμβάνει έναν ισχυρό, αποδοτικό λέβητα προσαρμοσμένο στις σύγχρονες ανάγκες, διασφαλίζοντας θερμική άνεση και μακροχρόνια επένδυση.