



Ο σκελετός με θρυμματιστή SFA SANIWALL PRO Up, αναφορά 0100832, είναι μια ολοκληρωμένη και ευέλικτη λύση σχεδιασμένη για την εγκατάσταση αιωρούμενων λεκάνων τουαλέτας σε κατοικίες ή εμπορικούς χώρους. Αυτό το σύστημα συνδυάζει έναν σκελετό Grohe με μια δεξαμενή διπλής εκκένωσης, έναν αποδοτικό θρυμματιστή και αδιαφανείς λευκούς γυάλινους πίνακες που επιτρέπουν την πλήρη απόκρυψη της εγκατάστασης μέσα στον τοίχο. Ιδανικό για καταστάσεις όπου δεν υπάρχει παραδοσιακή αποχέτευση, το SANIWALL PRO Up είναι μια αισθητική, λειτουργική και εύκολη στη συντήρηση επιλογή.
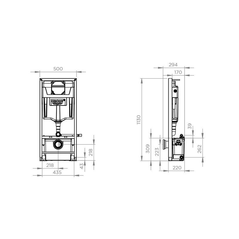
Ο σκελετός Grohe που περιλαμβάνεται στο σύστημα είναι σχεδιασμένος να είναι ρυθμιζόμενος σε ύψος, παρέχοντας μεγαλύτερη ευελιξία κατά την προσαρμογή της εγκατάστασης της λεκάνης τουαλέτας στο επιθυμητό ύψος. Η ενσωματωμένη δεξαμενή είναι εξοπλισμένη με σύστημα διπλής εκκένωσης, που επιτρέπει την επιλογή μεταξύ όγκου νερού 3 ή 6 λίτρων, εξασφαλίζοντας αποτελεσματική χρήση του νερού και λειτουργία φιλική προς το περιβάλλον. Αυτό όχι μόνο βελτιστοποιεί την κατανάλωση νερού, αλλά παρέχει και μια πιο βιώσιμη επιλογή για σύγχρονες εγκαταστάσεις.
Το SANIWALL PRO Up είναι εξοπλισμένο με έναν ισχυρό θρυμματιστή 400 W, που διαχειρίζεται τα λύματα από την τουαλέτα, νιπτήρα, ντους και μπιντέ. Αυτός ο θρυμματιστής διαθέτει μια κύρια είσοδο για την τουαλέτα και δύο πλευρικές εισόδους διαμέτρου 40 mm, που επιτρέπουν την εύκολη σύνδεση άλλων υδραυλικών του μπάνιου, όπως το ντους, ο νιπτήρας ή το μπιντέ. Το σύστημα θρυμματισμού εξασφαλίζει ότι τα στερεά απόβλητα διασπώνται σε μικρά σωματίδια, διευκολύνοντας την αποχέτευση μέσω σωλήνων μικρής διαμέτρου, όπως οι 22/28/32 mm, απλοποιώντας την εγκατάσταση σε χώρους όπου δεν είναι δυνατή μια παραδοσιακή αποχέτευση.
Ένα από τα μεγάλα πλεονεκτήματα του SANIWALL PRO Up είναι η αυτόματη λειτουργία του, που εγγυάται ότι η εκκένωση των λυμάτων γίνεται αποτελεσματικά κάθε φορά που χρησιμοποιείται η τουαλέτα, το ντους ή ο νιπτήρας. Ο θρυμματιστής μπορεί να ανυψώσει τα λύματα μέχρι 5 μέτρα κατακόρυφα και 100 μέτρα οριζόντια, καθιστώντας τον ιδανική λύση για μέρη όπου η κύρια αποχέτευση είναι μακριά ή σε ανώτερα επίπεδα. Αυτή η απόδοση εξασφαλίζει ότι ακόμη και σε δύσκολες καταστάσεις, η εκκένωση των λυμάτων γίνεται γρήγορα και χωρίς προβλήματα.
Εκτός από τη λειτουργικότητά του, το SANIWALL PRO Up ξεχωρίζει για το αισθητικό του σχέδιο. Οι αδιαφανείς λευκοί γυάλινοι πίνακες που περιλαμβάνονται στο σύνολο επιτρέπουν την πλήρη απόκρυψη της εγκατάστασης, προσφέροντας μια σύγχρονη και καθαρή εμφάνιση στο μπάνιο. Αυτοί οι πίνακες όχι μόνο βελτιώνουν την αισθητική, αλλά προσφέρουν και εύκολη πρόσβαση στα εξαρτήματα τόσο της δεξαμενής όσο και του θρυμματιστή, απλοποιώντας σημαντικά τις εργασίες συντήρησης. Στο πάνω μέρος του θρυμματιστή, υπάρχουν δύο πορτάκια που επιτρέπουν την πρόσβαση στα εσωτερικά εξαρτήματα γρήγορα, διευκολύνοντας τις εργασίες ελέγχου ή επισκευής χωρίς να χρειάζεται η αποσυναρμολόγηση ολόκληρου του συστήματος.
Η λειτουργία του θρυμματιστή είναι διακριτική, με επίπεδο θορύβου μόλις 47 dB(A), εξασφαλίζοντας ότι η χρήση του είναι αθόρυβη, ένα απαραίτητο χαρακτηριστικό για οικιστικά περιβάλλοντα όπου η ακουστική άνεση είναι σημαντική.
Τεχνικές προδιαγραφές του SANIWALL PRO Up:
Το SANIWALL PRO Up είναι σχεδιασμένο για να εγκαθίσταται μέσα στον τοίχο, επιτρέποντας τη δημιουργία ενός μπάνιου με μινιμαλιστική και σύγχρονη εμφάνιση, χωρίς να είναι ορατά τα εξαρτήματα του συστήματος αποχέτευσης. Επιπλέον, η ευελιξία του και η ικανότητά του να συνδέει πολλαπλές υδραυλικές εγκαταστάσεις το καθιστούν εξαιρετική επιλογή για ολοκληρωμένα μπάνια, όπου αναζητείται μια αποδοτική και αισθητική λύση για την εκκένωση των λυμάτων.